Натяжной потолок минимальный зазор. Минимальная высота потолка в зависимости от крепления багета
- Натяжной потолок минимальный зазор. Минимальная высота потолка в зависимости от крепления багета
- Минимальное расстояние подвесного потолка армстронг. Как устроен подвесной потолок «Армстронг»
- Натяжные потолки зазор. Чем закрыть технический зазор на натяжном потолке?
- Отступ от потолка натяжных потолков. Особенности установки
- Максимальное расстояние между натяжным потолком и потолком. От чего зависит высота подвесной натяжной системы. Теория
- Расстояние от шкафа до натяжного потолка. Шкаф-купе и натяжной потолок: что в начале и как совместить
- Натяжной потолок вплотную к потолку. Факторы, влияющие на величину отступа от потолка до натяжного потолка
- Расстояние от чернового потолка до натяжного. На сколько сантиметров можно пустить натяжной потолок в высоком помещении?
Натяжной потолок минимальный зазор. Минимальная высота потолка в зависимости от крепления багета

Для работы перфоратором по стене, требуется минимум 4 сантиметра от основного потолка.
Существует несколько типов багетных креплений, и сказать однозначно, на сколько см от потолка будет отступать полотно, не получится. Различают следующие виды креплений:
- Универсальное. Используется для правильных геометрических фигур и сложных форм и конфигураций.
- Стеновое. Отдаленно напоминает крепеж для гипсокартона. Устанавливается на стену, жестко фиксируется.
- Потолочное. Используется, если к стенкам прикрепить багет нельзя, и остается только прикрутить к перекрытию.
- Угловое. Состоит из двух элементов. Необходим для реализации сложных дизайнерских решений, многоуровневых систем.
- Разделительное. Применяется для стыковки полотен разной фактуры и цвета, а также используется в помещения большой площади.
Главный вопрос, требующий решения до установки натяжных потолков, – сколько сантиметров от потолка заберет багет. Для этого выберите профиль, уточните тип крепления (на стену, перекрытие). Посмотрите размер грани, в которой должны быть отверстия для дюбелей.
На потолок
Высота такого профиля зависит от натяжной системы и может составлять от 10 до 40 мм.

Даже если уровень одни, а светильников нет, придется пожертвовать от полутора до четырех сантиметров в зависимости от типа конструкции и материала, из которой она изготовлена. Учтите, что молдинги, которые крепятся к стенкам, визуально уменьшат высоту комнаты, особенно, если между подвесным потолком и лепниной будет зазор для укладки ленточных диодных лент. Люстра, точечные светильники дополнительно заберут пространство, что необходимо учитывать в любом случае, и придется отталкиваться именно от этого параметра.
На стену

Учитывайте, что есть модели, имеющие видимые элементы. Тогда при расчетах берется максимальный габарит по внешним граням стороны, прижимаемой к стене. В прочем, то же делают для скрытых багетов. Все решает глубина патронов встроенных светильников. К ней необходимо прибавить дополнительные полтора-два сантиметра, необходимые для установки крепежного профиля, прокладки и подключения электропроводки. Сами же настенные багеты бывают в пластиковом (25 – 29 мм высотой) и металлическом (35-40 мм высотой) исполнении. Но настенный профиль крепят на расстояние как минимум 10 мм от перекрытия.
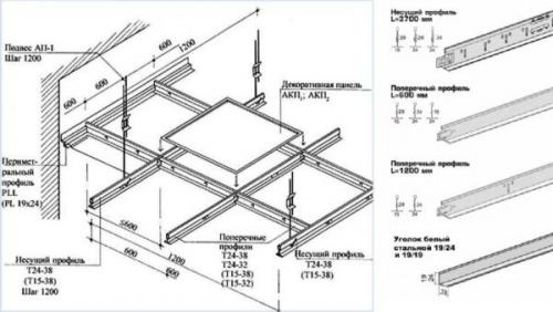
Минимальное расстояние подвесного потолка армстронг. Как устроен подвесной потолок «Армстронг»
Подвесной поток «Армстронг» – это запатентованная система, которая представляет собой следующую простую, но эффективную конструкцию:
- Направляющие Т-образного сечения, которые монтируются в монтажном горизонте в ортогональном направлении по отношению друг к другу, образуя прямоугольники и квадраты с габаритами от 300 х 300 мм до 600 х 1200 мм для монтажа облицовочных плиток.
- Профильные направляющие, которые устанавливаются между продольными несущими элементами. Имеют тот же Т-образный профиль, но не снабжаются отверстиями для подвесов. Монтируются на выступающие полки продольных профилей.

- Угловые профили, которые обрамляют всю подсистему. Крепятся к стенам по периметру комнаты. Представляют собой металлические уголки с полимерным покрытием и отверстиями для монтажа к строительной конструкции на саморезы.
- Подвесы для фиксации профильных элементов к низу плиты перекрытия. Оснащаются крючками-зацепами, а также резьбовыми сопряжениями для корректировки высоты монтажного горизонта.
- Главный конструктивный элемент подвесного потолка «Армстронг» – это плитки, которые образуют декоративную поверхность конструкции. Укладываются в каждую клетку, образованную направляющими, с обратной стороны подсистемы.
- Лампы, диффузоры для вентиляции, динамики для радио оповещения и другие приборы, которые должны монтироваться в помещениях для нормальной эксплуатации, согласно проекту и требованиям СНиП.

Со времён изобретения и внедрения данной системы, принципиальная схема устройства потолка «Армстронг» практически не менялась. С годами совершенствовались лишь материалы направляющих, типы осветительных приборов, а также сами декоративные плитки.
Натяжные потолки зазор. Чем закрыть технический зазор на натяжном потолке?
Полноценный комплект натяжного потолка состоит из набора элементов, каждый из которых отыгрывает важную роль для всей конструкции. Многие знают, что данная декоративнаясистема состоит из пластикового или алюминиевого каркаса и тонкого полотна (пленочного или тканевого), однако нередко забывают о маскировочной вставке для технических зазоров. А именно она придает общему дизайну ощущение целостности и завершенности.
К сведению!
Вставки для натяжных потолков – это тонкие ленты из гибкого ПВХ, которые устанавливаются в технические отверстия. Последние, в свою очередь, образуются между покрытием и стеной или двумя разными полотнами, состыкованными между собой соединительным профилем.
В компании «АстамГрупп» вы найдете широкий ассортимент таких изделий разной толщины, сечения и цвета.
Потолочный багет VS пластиковая вставка для натяжных потолков
Для того чтобы скрыть непривлекательную щель в натяжной конструкции у стены, можно использовать потолочный плинтус. Однако с учетом специфики пленочного покрытия следует понимать, что такое изделие клеить к потолку нельзя. Ведь под действием силы тяжести тонкое эластичное полотно обязательно провиснет, а от клея могут пойти деформации материала (стягивание, морщины). Именно поэтому плинтусы крепятся только к стене.
И вот когда возникнет необходимость снять натяжное покрытие по какой-либо причине, например, для ремонта электрики или слива воды после потопа (такое случается не часто, но все же имеет место быть), плинтус становится помехой. Его нужно удалять, а в процессе этого нередко портятся обои или ломаются сами декоративные планки. Их восстановление влечет дополнительные финансовые затраты.
Важно!
Вставки для натяжных потолков, в отличие от плинтусов, можно многократно вставлять и вынимать из технических зазоров. При этом не наносится урон ни полотну, ни стене.
Декоративные ленты смотрятся практически незаметно на потолке, что делает их идеальным вариантом для оформления периметра при любом дизайне интерьера. Они не вносят дисгармонию в общую композицию. К тому же их цена в компании «АстамГрупп» невысока и стартует всего от 10 руб. за 1 м.п.
Виды потолочных вставок
Маскирующие вставки для натяжных потолков могут иметь разную конфигурацию. Каждая из них сконструирована под особый вид профиля или определенные дизайнерские задачи.
- Т и F-образные используются для стыка между стеной и покрытием и они практически незаметны под потолком.
- Овальная, трубка и грибок предназначаются для разделительных профилей (выполняющих состыковку декоративных полотен).
- Уголок может устанавливаться только в паз гарпунного профиля. Его преимущество заключается в том, что он хорошо маскирует неровные стены помещения.
- Р-образная конфигурация разработана для штапиковой системы монтажа.

Обратите внимание!
Прежде чем покупать такую пластиковую ленту, выясните, какой зазор нужно задекорировать? Между стеной и покрытием или между двумя полотнами? Для штапиковой или для гарпунной системы монтажа? Ведь не существует универсального изделия, подходящего для всех случаев.
Если у вас возникли вопросы относительно выбора конфигурации маскирующей заглушки – вы можете получить консультацию от специалистов «АстамГрупп».
При покупке данного изделия большое внимание следует уделить выбору цвета. Самая простая ситуация наблюдается с белыми натяжными потолками, для которых достаточно легко подбираются белые вставки. Если же покрытие цветное, то и декоративные планки должны иметь соответствующий оттенок.
Цвет маскировочной ленты во многом влияет на общее восприятие потолка. Например, натяжное покрытие и вставку можно оформить в контрастных тонах. Это добавит оригинальность интерьеру.

Совет специалистов!
При желании увеличить высоту помещения маскировочную ленту выбирают одного цвета со стенами. А если хочется визуально расширить границы комнаты, то заглушку следует покупать в тон потолку.
В компании «АстамГрупп» существует возможность окрашивать подобные элементы натяжной системы в любой интересующий оттенок. Краска дает яркий цвет, который хорошо держится на протяжении всего периода эксплуатации.
Установка вставки для натяжного потолка не занимает много времени и не требует специальных навыков от мастера. Она просто монтируется в щель между стеной и покрытием или в паз на профиле. Никаких клеев использовать не нужно, достаточно приложить заглушку и слегка надавить на нее.
У нас вы можететехнических зазоров на натяжных потолках любого формата и в разном количестве. Мы предлагаем как розничные, так и оптовые цены для покупки.
Отступ от потолка натяжных потолков. Особенности установки
При установке натяжного потолка следует учитывать многие детали. В расчет берутся качество и вид материала, специфика крепления подвесного потолка, материал и состояние поверхности, наличие коммуникаций и приборов освещения.
Расстояние от потолочной плиты до натяжного потолка зависит от высоты и размеров комнаты, количества и расположения коммуникаций и приборов освещения. Немаловажную роль в определении минимального расстояния от потолка играет вид обрешетки, материал полотна, вариант монтажа.
Каждый человек старается сэкономить пространство, но натяжные потолки расстояние от пола сокращают в любом случае.

Зависимость отступа от базового потолка в зависимости от освещения
Конкретное расстояние, на сколько опускается уровень, определяется при первоначальных замерах индивидуально. При этом минимальная высота натяжного потолка — 15 мм — может быть выдержана только при соблюдении следующих условий:
- идеально ровная базовая поверхность;
- отсутствие на поверхности каких -либо коммуникаций, в том числе проводки;
- отсутствие стыков между плитами перекрытий;
- установка потолка без встроенных светильников.

Минимальный отступ в 35 мм — расстояние профиля
В остальных случаях сэкономить не получится. Что мешает минимизировать потери? Подвесной потолок опускают на большее расстояние по следующим причинам:
- довольно значимые неровности поверхности, размеры которых достигают нескольких сантиметров. Например, наличие стыков перекрытий;
- наличие на поверхности осветительных приборов. При этом расстояние, на которое опускается натяжной потолок, зависит от видов, схемы расположения, размеров и назначения этих приборов;
- внешние инженерные и электрические сети, проходящие на базовой поверхности. Расстояние до потолка может составить более 5 см;
- материал стен дома. Часто проблемы возникают в панельных домах, где щели в местах стыков стен с перекрытиями являются внушительными. Это требует увеличения расстояния между базовым покрытием и натяжной конструкцией.
Максимальное расстояние между натяжным потолком и потолком. От чего зависит высота подвесной натяжной системы. Теория
Какова допустимая высота потолков, если речь заходит о монтаже тканевого покрытия в верхней части помещения. Сколько у нас в распоряжении сантиметров, что бы правильно сделать новый потолок, и технологически и функционально.
Однозначного ответа на вопрос, насколько опускается натяжная система, нет. Здесь следует брать во внимание группу факторов и учитывать во время планировки работ ряд аспектов. Теоретически расстояние от потолка до натяжного потолка, т.е. промежуток между базовой потолочной поверхностью и подвесной системой, может варьироваться в диапазоне 2-30 см. Технологически на величину расстояния влияют следующие факторы:
- перепады высот, имеющиеся на перекрытиях;
- масштабы и конфигурация коммуникаций в верхней части помещения;
- конструкция и типы светильников;
- вид подвесной системы, ее форма и конфигурация.
Профессионалы, исходя из практики, утверждают – в природе нет одинаковых помещений. У каждого объекта есть свои технологические параметры, на основании которых строится вся последующая работа с натяжными системами. Стены и потолки не бывают с идеально ровной поверхностью и с одинаковыми углами.
На заметку: к примеру, перепад высот можно выявить практически везде. Обычно эта цифра составляет 10-15 мм от базового уровня. Где-то больше, где-то меньше.
Теоретически все выглядит просто. С помощью уровня определяем самую низкую точку на потолочной поверхности и опускаемся от нее вниз. Опуститься можно на 5-10 и более сантиметров, однако минимум составляет 3,5 см. Почему столько? Потому что это ширина монтажного профиля, элемента конструкции, к которому крепится натягиваемое полотно.
Имеем 15 мм, которые идут на перепад высот + 35 мм ширины профиля. В итоге получается 50 мм – минимально допустимое расстояние натяжного потолка от базового потолка.
Для справки: для идеально ровных перекрытий (очень редкое явление), натяжную систему можно монтировать непосредственно на потолочную базовую поверхность. Для этих целей используется потолочный каркас. Здесь высота нового потолка не будет превышать 15 мм, толщины монтажного профиля.
Такие параметры высоты позволят правильно установить осветительные приборы, спрятать имеющиеся коммуникации и сохранить практически не тронутым внутренний объем помещения. Однако это в идеальном варианте. На практике все выглядит гораздо сложнее.
Расстояние от шкафа до натяжного потолка. Шкаф-купе и натяжной потолок: что в начале и как совместить
При установке обычной мебели ремонт проводят по правилу сверху вниз. Поэтому сначала натягивают ПВХ-пленку, затем украшают полотно края, покрывают стены и пол. Затем собирают, устанавливают шкаф. В случае встраиваемой модели установка выполняется с учетом способа крепления потолка. Лист ПВХ крепится по периметру стен с помощью багетного профиля или скобы. В первом случае сначала натягивается пленка, затем подбирается высота корпуса мебели с желаемым зазором. Во втором случае конструкция позволяет пропустить полотно через верх шкафа, чтобы фасад выглядел заподлицо со стенами и потолком. Совет: перед установкой обязательно обработать бетонные поверхности антисептиком, чтобы в закрытом помещении не образовался грибок. Вместо фирменных фунгицидов подойдет крепкий раствор медного купороса. И снова это нормально. Если мебель не монтируется под сам потолок, мы монтируем деревянную балку как несущий элемент между верхней крышкой и бетонной плитой (далее мы будем называть ее балкой, закладной), на которую затем устанавливаем профиль перекрытия подвесное полотно. Чтобы придать дизайну полное эстетическое восприятие, монтируем на дерево декоративную планку. Однако можно обойтись без ремешка, прикрепив багет по нижнему краю закладной. также можно закрепить ленту не на конце носителя, а под ним, перед направляющими. Таким образом формируется своеобразный козырек. Если в отсеке уже есть козырек, его вырезаем, фиксируем закладной и используем как элемент питания. В этом случае полотно скроет линию разреза. Если дверные рейки крепятся непосредственно к плите, выемка прикрепляется перед ними и скрывает верх шкафа. В этом случае необходимо оставлять небольшое расстояние между закладной и направляющими, так как потолочный профиль фиксируется с тыльной стороны балки. Визуально в этом случае это выглядит так, как будто шкаф переходит в потолок. Если зазор между крышкой отсека и плитой позволяет монтировать молдинги прямо по периметру потолка и вы хотите сделать все именно так, добавьте к стоимости установки системы в труднодоступном месте стоимость холста. Есть несколько вариантов комбинирования: Каждый комбинированный метод имеет преимущества и недостатки, которые необходимо учитывать. На выбор также влияют эстетические предпочтения, внешний вид шкафа-купе с натяжным потолком будет немного отличаться для разных вариантов установки. Сначала оформляется ипотека. Для этого возьмите деревянный брус сечением от 50х50 до 100х100 мм. Длина должна соответствовать ширине помещения в месте установки. Можно собрать каркас из ДСП такой же формы. Установка происходит так: Внимание! Ипотека должна быть строго горизонтальной. Чтобы разместить его равномерно, используйте уровень или веревку, натянутую между отмеченными на стене точками. Иногда натягивают одновременно две струны, чтобы точнее измерить плоскость. Рейки раздвижных дверей прикручиваются к нижней части дерева. Затем со стороны комнаты к закладной крепится декоративная планка. В качестве материала использован тот же ДСП, что и мебель. Ширина должна быть больше размера балки вместе с направляющими, а нижний торец должен быть ламинирован. Фальшивая панель закроет профили дверок отсеков и вся конструкция будет более эстетичной. Такой вариант выбирают для гостиной или спальни. К доске и свободным стенам на одном уровне крепится молдинг натяжного потолка. Минимальное расстояние от необработанного листа до полотна — около 5 см. При сборке шкафа потолок натягивают. При таком способе вам также понадобится прочная балка. Его монтируют в том месте, где будут располагаться дверцы шкафа. Вставка фиксируется заподлицо с потолочным профилем. Итак, после растяжки полотно в этом месте будет однородным. Балка устанавливается по тому же принципу, что и предыдущим способом. Но пленка будет стекать прямо под раствор, поэтому важно подготовить древесину. Древесину тщательно полируют, чтобы не осталось заусенцев и других неровностей, и пропитывают антисептиком для предотвращения развития грибка. Следующим этапом будет установка натяжного потолка. Монтаж происходит в обычном режиме, поэтому мы не будем вдаваться в подробности этого момента. Дверные рейки крепятся к закладной через дверное полотно. В ткани просто проделываются дырочки, материал не даст им разойтись. А для пленок ПВХ защита нужна. Вокруг проколов наклеиваются термокольца или сантехническая лента. Так материал не будет расползаться.С чего начать – натяжного потолка или шкафа?
Вариант монтажа с установкой пристройкиСитуация вторая – шкаф был установлен раньше




Способы установки шкафа-купе с натяжным потолком
Фальш-панель
Закладная
Натяжной потолок вплотную к потолку. Факторы, влияющие на величину отступа от потолка до натяжного потолка
К ним относятся:
- уровень базового потолка . Потолочные перекрытия в квартирах блочных домов в большинстве случаев выполнены из бетонных плит. Часто основания оказываются неровными, поэтому образуются видимые перепады высот на одной поверхности. Если делать отступы от базового потолка, то монтированная натяжная конструкция в итоге окажется перекошенной. Поэтому установка начинается с нахождения нижнего угла в помещении, который и станет отправной точкой для крепления профиля;
- освещение . На то, на каком расстоянии от потолка натяжные потолки установить, влияют габариты приборов освещения. Если в квартире невысокие потолки, задача, стоящая перед дизайнерами – выбрать компактные источники искусственного освещения, чтобы не пришлось слишком опускать конструкцию.

Приборы освещения влияющие на высоту отступа
Тем не менее, строго придерживаться данного правила не обязательно. Подходящее покрытие и цвет полотна будут работать на визуальное увеличение высоты и расширение пространственных границ помещения. Приобретите несколько источников искусственного освещения, расположив их на разной высоте. Например, по центру установите традиционную люстру, а по периметру монтируйте светодиодную ленту .
Либо сделайте коллаж из точечных приборов, разбавьте его неоновой подсветкой. Если приобретаются компактные светильники, то пусть они будут выдержаны в едином стиле. Тогда получится сохранить высоту помещения, сделать интерьер гармоничным;

Пример освещения без потери высоты помещения
- инженерные коммуникации часто встречаются в стандартных «сталинках». Однако в таких домах расстояние от пола до потолка составляет три метра, поэтому даже, если декоративная конструкция опустится на 30 см от базового основания, трагедии не случится. Зато установив многоуровневую систему, получится разграничить помещение на отдельные зоны;
- от системы крепления полотен тоже зависит высота натяжных потолков. Способов фиксации полотна несколько, так же, как и профилей, применяемых для установки. Например, пластиковые багеты требуют отступа от перекрытия меньше, чем алюминиевые. Если монтируются тканевые потолки, то до полотна расстояние от базового основания должно составлять минимум 3 см. Это нужно, чтобы установить защелки, фиксирующие покрытие.

Способы крепления натяжных потолков
Пленочные полотна крепятся на разном расстоянии. Если для вас сохранение высоты является приоритетным, уведомите об этом мастера, который самостоятельно подберет способ крепления;
- материал натяжного полотна . Можно зрительно поднять натяжной потолок, если установить глянцевое покрытие из пленки ПВХ . Способность фактуры отражать свет и предметы, расположенные в комнате, играет на визуальное увеличение пространства.

Фото глянцевого потолка на кухне
Кроме материала полотен, влияние на расстояние между подвесным и стационарным потолками, оказывают способы отделки стен. Например, перед монтажом проводят дополнительное укрепление стыков между стенами и потолками, а также углов. Это тоже забирает высоту у помещения;
- конструктивные особенности натяжного потолка . Несмотря на то, что натянутое пленочное или тканевое полотно тонкое, конструкция в целом забирает высоту у помещения, так как крепление специального багета, куда вправляется покрытие, осуществляется на некотором расстоянии от потолка. Для установки применяют и потолочные профили. Но такой способ подходит только для ровных базовых оснований, где нет явных перепадов высоты и других строительных дефектов;
- технологические зазоры между стенами и потолком . Багет, из которого сооружается каркас для натяжного полотна, в зависимости от вида, крепят как к стенам, так и потолку. Наличие пустот между двумя поверхностями делает невозможным фиксацию профиля к потолочному основанию. Тогда приходится устанавливать багеты к стенам.
Расстояние от чернового потолка до натяжного. На сколько сантиметров можно пустить натяжной потолок в высоком помещении?
Очень часто обладатели домов и квартир с высокими потолками мечтают сделать свое жилье более комфортным, поэтому пытаются найти способ отделки, который снизит высоту помещения. Также такой прием позволяет сократить затраты на отопление, ведь прогреть комнату с низким потолком намного проще и дешевле, чем помещение, высота которого превышает 3 метра. Снижение высоты потолка сделает любую жилую комнату более уютной и камерной. Поэтому владельцы таких помещений задаются вопросом, какое максимальное расстояние от чернового потолка до полотна натяжного потолка можно создать.
В действительности, опустить натяжную конструкцию можно абсолютно на любую высоту. В этом случае необходимо использовать стеновые профили, которые будут установлены по периметру помещения в соответствии с нужным уровнем. Расстояние между потолками может достигать более 10 сантиметров. Однако при монтаже такой конструкции возникают некоторые трудности. Дело в том, что если вы планируете установить в потолок люстру или точечные светильники, необходимо создать специальные закладные, которые крепятся к черновому перекрытию. Эти элементы и будут удерживать осветительный прибор. Платформа для светильника должна располагаться в непосредственной близости к полотну натяжного потолка. Если высоты закладной будет недостаточной для соблюдения этого требования, придется создавать дополнительную конструкцию из деревянного бруса.

В остальном, опустить натяжной потолок можно абсолютно на любую высоту. Это позволяет не только сделать высокое помещение более уютным, но и скрыть достаточно объемные коммуникации, проходящие под потолком. Также снижение высоты необходимо, если на черновом перекрытии присутствуют существенные неровности и ступенчатые переходы между плитами.