Расстояние между потолком и натяжным полотном. Конструкция натяжного потолка
- Расстояние между потолком и натяжным полотном. Конструкция натяжного потолка
- На сколько меньше полотно натяжного потолка. Все о монтаже и ремонте потолков своими руками
- Натяжной потолок вплотную к потолку. Практическая часть
- Минимальное расстояние подвесного потолка армстронг. Как устроен подвесной потолок «Армстронг»
- Минимальная высота натяжного потолка — от чего зависит этот показатель?
- Минимальный отступ для натяжного потолка. Факторы, влияющие на величину отступа от потолка до натяжного потолка
- Можно ли опустить натяжной потолок на 20 см. Осветительные приборы
Расстояние между потолком и натяжным полотном. Конструкция натяжного потолка
Натяжной потолок представляет собой каркас из алюминиевых или пластиковых профилей (багетов), установленных по периметру комнаты на небольшом расстоянии от чернового перекрытия. Между ними натягивается и фиксируется тканевое либо пленочное полотно. В результате образуется идеально ровное потолочное покрытие.
Само по себе полотно имеет очень малуюи практически не забирает высоту потолка, влияние оказывает система крепления и вид профиля.
Виды профилей
Помимо материала изготовления, багеты различаются по способу монтажа и типу крепления. Именно от последних двух факторов в наибольшей степени зависит высота конструкции.
По способу монтажа выделяют три типа багетов:
- . Это наиболее распространенный вариант. Профиль крепится к стенам и позволяет легко скрыть неровности базового перекрытия.
- . Монтируется непосредственно к черновому потолку и помогает сэкономить 2-3 см высоты по сравнению со стеновым. Это важно для малогабаритных квартир, но возможно только при идеально ровной поверхности. Установка потолочных профилей обходится дороже, так как прикрепить багет к несущей плите перекрытия сложнее, поэтому такой способ используется, только когда нет альтернативы.
- (настенно-потолочный). Конструкция профиля предполагает крепление к любой поверхности. Применяется при создании объемных многоуровневых потолков.
По типу крепления полотна различают следующие виды багетов:
- . Самый надежный и долговечный. Применяется только для ПВХ-пленки импортного производства. Покрытие крепится с помощью специального гарпуна, который при монтаже заправляется в багет и удерживает полотно в натянутом состоянии. Щель между стеной и потолком закрывается маскировочной лентой. Одним из достоинств метода является возможность многоразового демонтажа и последующей установки.
- (клиновый). Применяется для крепления отечественной пленки либо тканевого полотна с помощью клиньев или штапиков. Зазор маскируется декоративной вставкой.
- (кулачковый). Предназначен исключительно для. Профиль представляет собой прищепку, которая фиксирует и удерживает полотно. Щель после монтажа не остается, заглушка не требуется.

Каждый вид багета отличается не только конструкцией, но и размерами, что напрямую влияет на минимально возможное расстояние от перекрытия до натяжного полотна.
Потолок как минимум становится ниже на высоту профиля. Помимо этого, требуется отступ, чтобы выровнять перепад уровня, так как плиты перекрытия часто бывают неровными. Далее мы подробно рассмотрим, на сколько уменьшается высота комнаты в зависимости от типа профиля и способа монтажа.
На сколько меньше полотно натяжного потолка. Все о монтаже и ремонте потолков своими руками
Чтобы готовый натяжной потолок был идеально ровным, без складок и провисов, его нужно правильно выкроить из полотна, учтя при этом не только площадь и конфигурацию комнаты, но и толщину и эластичность самой пленки.
Для этого делаются точные замеры помещения и составляется чертеж, после чего полотно кроится с учетом усадки.
Производство замеров
В каждой компании, занимающейся установкой потолков из ПВХ-пленки, есть менеджеры, производящие замеры и расчет — натяжные конструкции требуют точности, и ни одна уважающая себя фирма не будет работать по замерам, сделанным клиентом самостоятельно.
Если в обычной прямоугольной комнате, в которой планируется одноуровневый потолок, достаточно измерить только стороны и диагонали, то для помещений или многоуровневой конструкции сложной конфигурации данных требуется намного больше.
Это могут быть:
- Величины углов.
- Радиусы кривых линий.
- Расстояния от одного из углов до разных точек кривых линий и т. д.
Для примера приведем чертеж не самого сложного одноуровневого потолка.
Чертеж довольно простой конструкции
Как видите, здесь нужно снять девять только линейных размеров (АВ, ВС и т. д.), определить радиусы частей окружностей. Если же кривая линия не делится на крупные радиусные участки, то её разбивают на небольшие отрезки и измеряют линейные расстояния от угла С до конца каждого из них.
А если вы заказываете полотно сложной формы, для качественного раскроя может потребоваться и сотня данных.
Например:
В данном случае одной ширины полотна не хватает, необходимо будет делать спайку.
По большому счету, клиентов не должно волновать, как производятся замеры — это задача изготовителя. Мы же просто хотели пояснить, почему не стоит делать их самостоятельно, желая сэкономить средства и обращаясь в фирму (см. Производители натяжных потолков, лидеры ), готовую оказать вам услугу без профессионального замера.
Определение усадки
Полотно кроится таким образом, чтобы оно было на определенное количество процентов меньше реальной площади. Это необходимо для того, чтобы оно хорошо натянулось и не провисало под собственным весом. Это намеренное уменьшение размеров называется усадкой.

Натяжной потолок вплотную к потолку. Практическая часть
Для того, что бы ни ломать голову над тем, какой должна быть высота натягиваемой потолочной конструкции лучше всего иметь представление о технологических параметрах конструктивных элементов. Из чего состоит конструкция натяжной системы?
Основным конструктивным элементом, на котором базируется вся система – это направляющий профиль. На профессиональном языке он называется багет. Обычно используются в работе настенный тип изделия. Но есть и другие: настенно-потолочный и потолочный. Каждый тип имеет свои технологические особенности и требования к монтажу. С точки зрения конструктива нас интересует высота профиля.
Самый распространенный тип профилей – настенно-потолочный багет. Это приспособление одновременно выполняет две функции:
- фиксацию натягиваемого полотна;
- выравнивание полотна сразу по двум направлениям, по горизонтали и по вертикали.
В процессе монтажа с помощью уровня багет ставится в горизонтальное положение. Точкой отчета в данном случае служит самый высокий и ровный и правильный угол. Багет, сделанный из ПВХ, имеется ширину основной стороны в диапазоне 25-29мм. Разница может зависеть от компании производителя расходных материалов.
К примеру, часто в работу идет профиль с шириной крепежной планки, указанной на фото
Если вы используете в монтаже металлические, алюминиевые профили, то здесь планка изделия уже несколько больше, 35-37 мм. Разница все в том же, в изготовителе.
Эти параметры и лягут в основу планировки высоты ваших натяжных потолков. Используя эти данные можно говорить о том, какой допускается минимум и сколько пространства могут съесть натяжные потолки.
Для работы с багетами настенного типа, это параметр можно не учитывать. Этот вариант используется реже, однако является крайним случаем. Почему? Все дело в том, что обычно на стыках, где соприкасаются перекрытия и панели, бетонная структура не является достаточно прочной и устойчивой. В большинстве случаев крепления, установленные таким образом не способны выдержать нагрузку, создаваемую натягиваемым полотном.
К тому же монтировать профиль прямо на стык, крайне неудобно с точки зрение технологичности. К тому же часто в стыках укладывается электропроводка, а при контакте с монтажными креплениями может возникнуть пробой. Иногда потребуется для укрепления багета ставить дополнительные распорки, укрепленные прямо к потолку.
Что мы имеем в итоге. Оптимальная высота натяжных систем, когда речь идет об одноуровневых конструкциях, составляет все те же 50мм. Ширина монтажной планки багета + 4-5-6 см на отступ для установки самого профиля.
При использовании настенного профиля потолочная поверхность опускается на 4-7 см. При использовании потолочного профиля высота опускания составит 2-3 см по всему периметру комнаты. Комбинированный профиль даст высоту для опускания в 2,5-3 см.
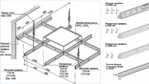
Минимальное расстояние подвесного потолка армстронг. Как устроен подвесной потолок «Армстронг»
Подвесной поток «Армстронг» – это запатентованная система, которая представляет собой следующую простую, но эффективную конструкцию:
- Направляющие Т-образного сечения, которые монтируются в монтажном горизонте в ортогональном направлении по отношению друг к другу, образуя прямоугольники и квадраты с габаритами от 300 х 300 мм до 600 х 1200 мм для монтажа облицовочных плиток.
- Профильные направляющие, которые устанавливаются между продольными несущими элементами. Имеют тот же Т-образный профиль, но не снабжаются отверстиями для подвесов. Монтируются на выступающие полки продольных профилей.

- Угловые профили, которые обрамляют всю подсистему. Крепятся к стенам по периметру комнаты. Представляют собой металлические уголки с полимерным покрытием и отверстиями для монтажа к строительной конструкции на саморезы.
- Подвесы для фиксации профильных элементов к низу плиты перекрытия. Оснащаются крючками-зацепами, а также резьбовыми сопряжениями для корректировки высоты монтажного горизонта.
- Главный конструктивный элемент подвесного потолка «Армстронг» – это плитки, которые образуют декоративную поверхность конструкции. Укладываются в каждую клетку, образованную направляющими, с обратной стороны подсистемы.
- Лампы, диффузоры для вентиляции, динамики для радио оповещения и другие приборы, которые должны монтироваться в помещениях для нормальной эксплуатации, согласно проекту и требованиям СНиП.

Со времён изобретения и внедрения данной системы, принципиальная схема устройства потолка «Армстронг» практически не менялась. С годами совершенствовались лишь материалы направляющих, типы осветительных приборов, а также сами декоративные плитки.
Минимальная высота натяжного потолка — от чего зависит этот показатель?
Одним из самых долговечных, практичных и универсальных покрытий специалистами признаны натяжные системы. Этому способствуют не только свойства материала — прочность, надежность, разнообразие цветов и фактур, но и относительная доступность покрытия, благодаря чему обновить потолок в своем доме может практически любой. Но прежде, чем установить дома потолочную конструкцию, каждый интересуется: какова минимальная высота натяжного потолка и сколько вышина помещения «съедает» их установку. И это вполне понятно — в комнатах, где поверхность висит над самой головой, и работать и жить не очень комфортно.
Что влияет на высоту потолочной поверхности?

Многие неискушенные потребители считают, что минимум, на сколько опускается поверхность, равна высоте багета, то есть 3 см. Но это мнение не всегда правильно. Дело в том, что на этот показатель влияют и другие факторы. Это:
- Системы коммуникаций. В верхней части помещения могут быть расположены газовые, отопительные или вентиляционные трубы, другие коммуникации, тогда придется к минимальной цифре высоты натяжного потолка добавлять и то расстояние, которое они занимают.
- Освещение. Даже, если никаких коммуникаций нет, это еще не значит, что поверхность опустится на размер багета. Дело в том, что, в тех домах, которые были построены еще в советские времена, приблизительно на этом уровне проходят разводящие электрические кабеля и если начать сверлить стены, проводку можно повредить. Поэтому, либо нужно переносить провода, либо опустить потолок еще ниже. Кроме того, для освещения помещения необходимо выполнить установку люстр, светильников или другого подобного оборудования. На их монтаж в натяжную конструкцию тоже понадобится определенная высота, особенно, если речь идет о больших люстрах, которые необходимо подвешивать на бетонное основание, например, на крюк, что тоже займет определенное расстояние от полотна.
- Неровности поверхности. Далеко не в каждом помещении потолочная поверхность ровная, часто можно увидеть, что между плитами имеют место перепады. Из-за этого отсчет придется вести от самой низкой точки плоскости.
Когда натяжные конструкции — идеальный выход?
ПВХ-пленка не всегда является единственным материалом для обновления помещения. Но ее установка — действительно правильное решение, когда в помещении:
- Высокие стены. Установка подобной системы уберет ненужные сантиметры, что позволит создать в комнате более комфортную атмосферу.
- Угроза затопления. Это особенно актуально для квартир, расположенных под крышей или тех, чьи соседи сверху не совсем расторопные. Даже при минимальном объеме потолков натяжного типа полотнище сможет спасти квартиру от затопления и повторного ремонта.
- В помещениях, где постоянно высокая влажность, а так же там, где нужно сохранять чистоту.
На заметку : Поливинилхлоридный материал отлично очищается влажной салфеткой, не притягивает пыль. Не боится этот материал и влаги, поэтому от ее переизбытка не гниет, не разводится на нем и плесень.
Как установить системы в невысоких помещениях?

Низкие стены отнюдь не являются поводом для отказа от установки системы, поскольку на их монтаж понадобится минимум 3-4 см. На общее впечатление это особо не повлияет.
Визуально увеличить помещение можно следующим образом:
- Выбрать зеркальный материал. Отражающий эффект будет увеличивать высоту помещения.
- Устанавливать конструкцию штапиковым, либо клиновым методом, что позволит больше всего сохранить параметры помещения.
- Следуя совету опытных дизайнеров, выбирать полотна светлых оттенков, так как, они тоже визуально увеличивают пространство.
- При установке потолочных конструкций натяжного типа без монтажа осветительного оборудования расстояние от основного потолка до пленки будет составлять около 3-4 см.
По поводу освещения обязательно нужно знать, сколько забирает установка осветительных приборов и другого оборудования:
- для люстры — от 5 до 6 см;
- для светодиодных светильников — 9 см;
- системам сигнализации и безопасности необходимо около 14 см.
Минимальный отступ для натяжного потолка. Факторы, влияющие на величину отступа от потолка до натяжного потолка
К ним относятся:
- уровень базового потолка . Потолочные перекрытия в квартирах блочных домов в большинстве случаев выполнены из бетонных плит. Часто основания оказываются неровными, поэтому образуются видимые перепады высот на одной поверхности. Если делать отступы от базового потолка, то монтированная натяжная конструкция в итоге окажется перекошенной. Поэтому установка начинается с нахождения нижнего угла в помещении, который и станет отправной точкой для крепления профиля;
- освещение . На то, на каком расстоянии от потолка натяжные потолки установить, влияют габариты приборов освещения. Если в квартире невысокие потолки, задача, стоящая перед дизайнерами – выбрать компактные источники искусственного освещения, чтобы не пришлось слишком опускать конструкцию.

Приборы освещения влияющие на высоту отступа
Тем не менее, строго придерживаться данного правила не обязательно. Подходящее покрытие и цвет полотна будут работать на визуальное увеличение высоты и расширение пространственных границ помещения. Приобретите несколько источников искусственного освещения, расположив их на разной высоте. Например, по центру установите традиционную люстру, а по периметру монтируйте светодиодную ленту .
Либо сделайте коллаж из точечных приборов, разбавьте его неоновой подсветкой. Если приобретаются компактные светильники, то пусть они будут выдержаны в едином стиле. Тогда получится сохранить высоту помещения, сделать интерьер гармоничным;

Пример освещения без потери высоты помещения
- инженерные коммуникации часто встречаются в стандартных «сталинках». Однако в таких домах расстояние от пола до потолка составляет три метра, поэтому даже, если декоративная конструкция опустится на 30 см от базового основания, трагедии не случится. Зато установив многоуровневую систему, получится разграничить помещение на отдельные зоны;
- от системы крепления полотен тоже зависит высота натяжных потолков. Способов фиксации полотна несколько, так же, как и профилей, применяемых для установки. Например, пластиковые багеты требуют отступа от перекрытия меньше, чем алюминиевые. Если монтируются тканевые потолки, то до полотна расстояние от базового основания должно составлять минимум 3 см. Это нужно, чтобы установить защелки, фиксирующие покрытие.

Способы крепления натяжных потолков
Пленочные полотна крепятся на разном расстоянии. Если для вас сохранение высоты является приоритетным, уведомите об этом мастера, который самостоятельно подберет способ крепления;
- материал натяжного полотна . Можно зрительно поднять натяжной потолок, если установить глянцевое покрытие из пленки ПВХ . Способность фактуры отражать свет и предметы, расположенные в комнате, играет на визуальное увеличение пространства.

Фото глянцевого потолка на кухне
Кроме материала полотен, влияние на расстояние между подвесным и стационарным потолками, оказывают способы отделки стен. Например, перед монтажом проводят дополнительное укрепление стыков между стенами и потолками, а также углов. Это тоже забирает высоту у помещения;
- конструктивные особенности натяжного потолка . Несмотря на то, что натянутое пленочное или тканевое полотно тонкое, конструкция в целом забирает высоту у помещения, так как крепление специального багета, куда вправляется покрытие, осуществляется на некотором расстоянии от потолка. Для установки применяют и потолочные профили. Но такой способ подходит только для ровных базовых оснований, где нет явных перепадов высоты и других строительных дефектов;
- технологические зазоры между стенами и потолком . Багет, из которого сооружается каркас для натяжного полотна, в зависимости от вида, крепят как к стенам, так и потолку. Наличие пустот между двумя поверхностями делает невозможным фиксацию профиля к потолочному основанию. Тогда приходится устанавливать багеты к стенам.
Можно ли опустить натяжной потолок на 20 см. Осветительные приборы
Как правило, монтируя конструкцию натяжного потолка, выбирают наиболее сочетающиеся с этой системой виды освещения, такие как:
- Светильники с галогенными лампами.
- Люстры.
- Точечные светильники.
- Ленты со встроенными светодиодами.
- Светильники светодиодного типа.
Зная нюансы установки этих приборов, легко понять, как они повлияют на высоту помещения. Так, споты (точечные светильники) потребуют от 5 до 10 см высоты, поскольку потребуется скрыть их цоколь. При этом подобный вариант невероятно впечатляет, ведь можно создать впечатление, что светится все полотно.
Светодиодная лента устанавливается при условии наличия свободных 2,5-11 см. Однако, забирая определенную часть высоты, лента поможет скорректировать неровности обрешетки.
Выбор в пользу люстр – самый распространенный.
Существует два типа люстр, которые отличаются способом крепления:
- Потолочная. Крепится на монтажную планку, для которой заранее нужно подготовить основу перед установкой потолка.
- Крючковая. Фиксируется с помощью петель и/или крюков. При таком приборе снижение уровня потолка составит 3 сантиметра.
Светильники светодиодного типа – оптимальное решение для многоуровневых натяжных потолков. Если же они монтируются в конструкции с простым полотном, то их грамотное использование позволяет визуально увеличить высоту, тогда как фактически светодиоды понижают потолок на 3 см.
Галогенные лампы имеют большой срок службы, высокую прочность и хорошую светоотдачу, но монтируя подводку под такие осветительные приборы, натяжное полотно придется опустить ниже на 8-12 сантиметров.
Устанавливая осветительные приборы, важно помнить о противопожарной безопасности, не экономить на сантиметрах высоты, если того требуют технические характеристики ламп.
При планировании рекомендуется предусмотреть возможность циркуляции воздуха между поверхностью потолка и корпусом осветительного элемента.