Сколько отступают от потолка при монтаже натяжного потолка. Высота натяжного потолка
- Сколько отступают от потолка при монтаже натяжного потолка. Высота натяжного потолка
- Натяжной потолок сколько см от потолка. На сколько сантиметров можно пустить натяжной потолок в высоком помещении?
- Сколько отступают от потолка для натяжного. Виды профилей
- Натяжной потолок сколько стоит. Сколько стоит натяжной потолок за 1 м2 с установкой?
- Максимальное расстояние между натяжным потолком и потолком. Конструкция натяжного потолка
- Минимальное расстояние подвесного потолка армстронг. Как устроен подвесной потолок «Армстронг»
- Можно ли опустить натяжной потолок на 20 см. Осветительные приборы
- Высота натяжного потолка с точечными светильниками. Минимальная высота натяжного потолка
Сколько отступают от потолка при монтаже натяжного потолка. Высота натяжного потолка
Натяжное потолочное покрытие стало наиболее популярным вариантом создания современного дизайна в помещении. Но многие владельцы квартир с низкими потолками задаются вопросом, возможна ли установка такой конструкции, и какова должна быть высота по общепринятым нормам.
Что влияет на высоту потолка
Существует множество факторов, которые требуют опускать уровень натяжного потолка на значительное расстояние. В частности, высота крепления полотна зависит от:
Чаще всего при монтаже пользуются пластиковым или металлическим стеновым профилем. Подобная конструкция предназначена для регулировки высоты потолочного покрытия и получения идеально ровного потолка даже при неровностях на базовой поверхности.
Также на высоту влияет качество основного потолочного покрытия. Нередко на нем можно обнаружить неровные плиты со ступеньками и видимыми зазорами. В том числе в некоторых квартирах по потолку проходят трубы. Влияет на уровень и проводка.
Наличие осветительных приборов на потолке также является решающим фактором при монтаже натяжного полотна. При установке встраиваемых светильников с лампой накаливания потолок опустится минимально на 10 см. Галогенные лампы позволяют чуть уменьшить высоту. Для экономии пространства рекомендуется крепление ультратонких светодиодных светильников, такая конструкция займет в ширину максимум несколько миллиметров.
Минимальное расстояние для одноуровневого потолка
Минимальная возможная высота натяжного потолка - 3см. Такого возможмо достичь только при ипользовании ПВХ полотна и наличии идеально ровного базового потолка. В реальности такая ситауция практически недостижима и все зависит от индивидуальных особенностей помещения.
Способы монтажа с минимальным расстоянием между потолком и полотном
После того как учтены неровности и выявлены все отклонения с помощью уровня, делается разметка на стене, по которой протягивается шнур, и проводится крепление профиля. Натяжной потолок монтируется с помощью профессионалов, которые знают, как наиболее выгодно укрепить конструкцию. Попробовать установить натяжной потолок можно и самостоятельно, но данный процесс весьма трудоемкий и справится с этим самому крайне трудно.
Способы увеличение расстояние между потолком и натяжным полотном
Для получения минимального отсутпа в межпотолочном пространстве, стоит выбирать точечные осветительные приборы , отличающиеся компактными размерами, так как для их крепления требуется меньшая глубина.
Натяжной потолок сколько см от потолка. На сколько сантиметров можно пустить натяжной потолок в высоком помещении?
Очень часто обладатели домов и квартир с высокими потолками мечтают сделать свое жилье более комфортным, поэтому пытаются найти способ отделки, который снизит высоту помещения. Также такой прием позволяет сократить затраты на отопление, ведь прогреть комнату с низким потолком намного проще и дешевле, чем помещение, высота которого превышает 3 метра. Снижение высоты потолка сделает любую жилую комнату более уютной и камерной. Поэтому владельцы таких помещений задаются вопросом, какое максимальное расстояние от чернового потолка до полотна натяжного потолка можно создать.
В действительности, опустить натяжную конструкцию можно абсолютно на любую высоту. В этом случае необходимо использовать стеновые профили, которые будут установлены по периметру помещения в соответствии с нужным уровнем. Расстояние между потолками может достигать более 10 сантиметров. Однако при монтаже такой конструкции возникают некоторые трудности. Дело в том, что если вы планируете установить в потолок люстру или точечные светильники, необходимо создать специальные закладные, которые крепятся к черновому перекрытию. Эти элементы и будут удерживать осветительный прибор. Платформа для светильника должна располагаться в непосредственной близости к полотну натяжного потолка. Если высоты закладной будет недостаточной для соблюдения этого требования, придется создавать дополнительную конструкцию из деревянного бруса.

В остальном, опустить натяжной потолок можно абсолютно на любую высоту. Это позволяет не только сделать высокое помещение более уютным, но и скрыть достаточно объемные коммуникации, проходящие под потолком. Также снижение высоты необходимо, если на черновом перекрытии присутствуют существенные неровности и ступенчатые переходы между плитами.
Сколько отступают от потолка для натяжного. Виды профилей
Помимо материала изготовления, багеты различаются по способу монтажа и типу крепления. Именно от последних двух факторов в наибольшей степени зависит высота конструкции.
По способу монтажа выделяют три типа багетов:
- Настенный . Это наиболее распространенный вариант. Профиль крепится к стенам и позволяет легко скрыть неровности базового перекрытия.
- Потолочный . Монтируется непосредственно к черновому потолку и помогает сэкономить 2-3 см высоты по сравнению со стеновым. Это важно для малогабаритных квартир, но возможно только при идеально ровной поверхности. Установка потолочных профилей обходится дороже, так как прикрепить багет к несущей плите перекрытия сложнее, поэтому такой способ используется, только когда нет альтернативы.
- Универсальный (настенно-потолочный). Конструкция профиля предполагает крепление к любой поверхности. Применяется при создании объемных многоуровневых потолков.
По типу крепления полотна различают следующие виды багетов:
- . Самый надежный и долговечный. Применяется только для ПВХ-пленки импортного производства. Покрытие крепится с помощью специального гарпуна, который при монтаже заправляется в багет и удерживает полотно в натянутом состоянии. Щель между стеной и потолком закрывается маскировочной лентой. Одним из достоинств метода является возможность многоразового демонтажа и последующей установки.
- (клиновый). Применяется для крепления отечественной пленки либо тканевого полотна с помощью клиньев или штапиков. Зазор маскируется декоративной вставкой.
- (кулачковый). Предназначен исключительно для. Профиль представляет собой прищепку, которая фиксирует и удерживает полотно. Щель после монтажа не остается, заглушка не требуется.

Каждый вид багета отличается не только конструкцией, но и размерами, что напрямую влияет на минимально возможное расстояние от перекрытия до натяжного полотна.
Потолок как минимум становится ниже на высоту профиля. Помимо этого, требуется отступ, чтобы выровнять перепад уровня, так как плиты перекрытия часто бывают неровными. Далее мы подробно рассмотрим, на сколько уменьшается высота комнаты в зависимости от типа профиля и способа монтажа.
Натяжной потолок сколько стоит. Сколько стоит натяжной потолок за 1 м2 с установкой?

Сегодня все чаще при отделке потолка во время ремонта отдают предпочтение натяжным системам. Это современное практичное решение. На территории России приобрести натяжной потолок с установкой можно за 290-5440 рублей за 1 м2 .
Общая характеристика
Натяжной потолок — конструкция для финишной отделки потолка . Состоит из профиля, полотна и фиксаторов. Дополнительно в конструкцию могут входить светодиодные лампы или ленты, разные декоративные элементы. Натяжной потолок устанавливают представители компании, в которой он был приобретен. Тогда на изделие сохраняется гарантия.
Преимущество натяжного потолка в том, что он создает идеально ровную поверхность даже в тех комнатах, где потолочное основание имеет значительные перепады по уровню и прочие дефекты. Устанавливают сегодня такие конструкции повсеместно, в жилых и нежилых объектах различного назначения.

Факторы, определяющие стоимость
Цена приобретения и установки натяжного потолка может варьироваться в широких пределах. На стоимость оказывают влияние такие факторы:
- Качество профиля.
- Наличие швов.
- Тип крепления.
- Дизайн конструкции.
- Количество уровней в системе.
- Применяемые инструменты для монтажа.
- Включение в систему дополнительных декоративных функциональных элементов.
- Сложность проведения монтажных работ.
- Квалификация и опыт специалистов, проводящих монтаж.
- Срочность выполнения заказа.
- Ценовая политика компании.
- Объем работ.
Основные разновидности
Можно установить натяжную систему с алюминиевым или пластиковым профилем. Последний вариант обходится дешевле.
В зависимости от вида полотна есть потолки:
- Тканевые.
- Поливинилхлоридные.
По структуре поверхности выделяют такие варианты систем:
- Сатиновые.
- Матовые.
- Глянцевые.
По числу уровней выделяют натяжные потолки:
- Одноярусные.
- Двухуровневые.
- Трехъярусные.
- Многоуровневые.
Чем больше уровней, тем сложнее проходит монтаж, тем больше затрачивается материала, соответственно, тем дороже обойдется отделка.
- Однотонный.
- Разноцветный (с узором, рисунком).
По наличию подсветки есть такие модели:
- Со световыми линиями.
- С точечной подсветкой.
- Без осветительных элементов.
По наличию швов на полотне есть натяжные системы:
- Шовные.
- Бесшовные.
Последние смотрятся лучше, но стоят дороже.
По выделенному на работу времени установка натяжных потолков бывает:
- Срочной (внеочередной).
- Обычной (услуга оказывается по мере освобождения работников от предыдущего заказа).

Примерный прайс
Российские компании предлагают натяжные потолки с установкой за 290-5440 рублей за квадратный метр. Ориентировочные цены разных систем приведены в таблице.
| Тип натяжного потолка | Минимальная цена с установкой за 1 м2 | Максимальная цена с установкой за 1 м2 |
| Стандартный белый поливинилхлоридный | 290 | 400 |
| Цветной матовый или сатиновый | 400 | 600 |
| Стандартный белый бесшовный | 320 | 550 |
| 600 | 2200 | |
| Со световыми линиями | 1615 | 5440 |
| Тканевой двухуровневый однотонный | 900 | 1200 |
| Трехуровневый из ПВХ однотонный | 1800 | 2500 |

Полезные советы по выбору
При выборе натяжного потолка важно обращать внимание на характеристики, качество такой конструкции. Ведь система покупается и устанавливается ни на один год. Поэтому важно, чтобы она идеально подходила помещению и имела долгий срок службы.
Критериями выбора натяжного потолка должны стать:
- Фирма-производитель . Брендовые изделия являются более качественными. На них дается гарантия на долгий срок.
- Материал изготовления полотна . Подбирается с учетом декора, личных предпочтений. Если хочется получить бесшовный потолок, то стоит отдавать предпочтение тканевым полотнам. На матовых поверхностях лучше смотрится рисунок и фотопечать. Глянцевые ПВХ изделия стоит выбирать, если комната маленькая по площади и с низким потолком.
- Декор . Подбирается по своему усмотрению. Красиво и оригинально выглядят потолки с фотопечатью и световыми линиями.
Важно сотрудничать с надежной компанией . Ведь вид натяжной потолочной системы во многом зависит и от ее установки. А качество монтажа определяют квалификация и опыт специалистов. Лучше обращаться в те фирмы, которые давно работают, имеют профессиональный штат, отличную репутацию и дают гарантии.
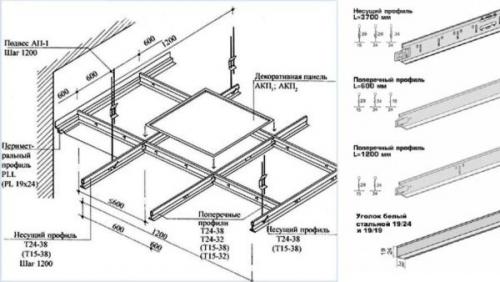
Максимальное расстояние между натяжным потолком и потолком. Конструкция натяжного потолка
Натяжной потолок представляет собой каркас из алюминиевых или пластиковых профилей (багетов), установленных по периметру комнаты на небольшом расстоянии от чернового перекрытия. Между ними натягивается и фиксируется тканевое либо пленочное полотно. В результате образуется идеально ровное потолочное покрытие.
Само по себе полотно имеет очень малую толщину и практически не забирает высоту потолка, влияние оказывает система крепления и вид профиля.
Виды профилей
Помимо материала изготовления, багеты различаются по способу монтажа и типу крепления. Именно от последних двух факторов в наибольшей степени зависит высота конструкции.
По способу монтажа выделяют три типа багетов:
- Настенный . Это наиболее распространенный вариант. Профиль крепится к стенам и позволяет легко скрыть неровности базового перекрытия.
- Потолочный . Монтируется непосредственно к черновому потолку и помогает сэкономить 2-3 см высоты по сравнению со стеновым. Это важно для малогабаритных квартир, но возможно только при идеально ровной поверхности. Установка потолочных профилей обходится дороже, так как прикрепить багет к несущей плите перекрытия сложнее, поэтому такой способ используется, только когда нет альтернативы.
- Универсальный (настенно-потолочный). Конструкция профиля предполагает крепление к любой поверхности. Применяется при создании объемных многоуровневых потолков.
По типу крепления полотна различают следующие виды багетов:
- Гарпунный . Самый надежный и долговечный. Применяется только для ПВХ-пленки импортного производства. Покрытие крепится с помощью специального гарпуна, который при монтаже заправляется в багет и удерживает полотно в натянутом состоянии. Щель между стеной и потолком закрывается маскировочной лентой. Одним из достоинств метода является возможность многоразового демонтажа и последующей установки.
- Штапиковый (клиновый). Применяется для крепления отечественной пленки либо тканевого полотна с помощью клиньев или штапиков. Зазор маскируется декоративной вставкой.
- Клипсовый (кулачковый). Предназначен исключительно для установки тканевых натяжных потолков. Профиль представляет собой прищепку, которая фиксирует и удерживает полотно. Щель после монтажа не остается, заглушка не требуется.
Каждый вид багета отличается не только конструкцией, но и размерами, что напрямую влияет на минимально возможное расстояние от перекрытия до натяжного полотна.
Потолок как минимум становится ниже на высоту профиля. Помимо этого, требуется отступ, чтобы выровнять перепад уровня, так как плиты перекрытия часто бывают неровными. Далее мы подробно рассмотрим, на сколько уменьшается высота комнаты в зависимости от типа профиля и способа монтажа.
Минимальное расстояние подвесного потолка армстронг. Как устроен подвесной потолок «Армстронг»
Подвесной поток «Армстронг» – это запатентованная система, которая представляет собой следующую простую, но эффективную конструкцию:
- Направляющие Т-образного сечения, которые монтируются в монтажном горизонте в ортогональном направлении по отношению друг к другу, образуя прямоугольники и квадраты с габаритами от 300 х 300 мм до 600 х 1200 мм для монтажа облицовочных плиток.
- Профильные направляющие, которые устанавливаются между продольными несущими элементами. Имеют тот же Т-образный профиль, но не снабжаются отверстиями для подвесов. Монтируются на выступающие полки продольных профилей.

- Угловые профили, которые обрамляют всю подсистему. Крепятся к стенам по периметру комнаты. Представляют собой металлические уголки с полимерным покрытием и отверстиями для монтажа к строительной конструкции на саморезы.
- Подвесы для фиксации профильных элементов к низу плиты перекрытия. Оснащаются крючками-зацепами, а также резьбовыми сопряжениями для корректировки высоты монтажного горизонта.
- Главный конструктивный элемент подвесного потолка «Армстронг» – это плитки, которые образуют декоративную поверхность конструкции. Укладываются в каждую клетку, образованную направляющими, с обратной стороны подсистемы.
- Лампы, диффузоры для вентиляции, динамики для радио оповещения и другие приборы, которые должны монтироваться в помещениях для нормальной эксплуатации, согласно проекту и требованиям СНиП.

Со времён изобретения и внедрения данной системы, принципиальная схема устройства потолка «Армстронг» практически не менялась. С годами совершенствовались лишь материалы направляющих, типы осветительных приборов, а также сами декоративные плитки.
Можно ли опустить натяжной потолок на 20 см. Осветительные приборы
Как правило, монтируя конструкцию натяжного потолка, выбирают наиболее сочетающиеся с этой системой виды освещения, такие как:
- Светильники с галогенными лампами.
- Люстры.
- Точечные светильники.
- Ленты со встроенными светодиодами.
- Светильники светодиодного типа.
Зная нюансы установки этих приборов, легко понять, как они повлияют на высоту помещения. Так, споты (точечные светильники) потребуют от 5 до 10 см высоты, поскольку потребуется скрыть их цоколь. При этом подобный вариант невероятно впечатляет, ведь можно создать впечатление, что светится все полотно.
Светодиодная лента устанавливается при условии наличия свободных 2,5-11 см. Однако, забирая определенную часть высоты, лента поможет скорректировать неровности обрешетки.
Выбор в пользу люстр – самый распространенный.
Существует два типа люстр, которые отличаются способом крепления:
- Потолочная. Крепится на монтажную планку, для которой заранее нужно подготовить основу перед установкой потолка.
- Крючковая. Фиксируется с помощью петель и/или крюков. При таком приборе снижение уровня потолка составит 3 сантиметра.
Светильники светодиодного типа – оптимальное решение для многоуровневых натяжных потолков. Если же они монтируются в конструкции с простым полотном, то их грамотное использование позволяет визуально увеличить высоту, тогда как фактически светодиоды понижают потолок на 3 см.
Галогенные лампы имеют большой срок службы, высокую прочность и хорошую светоотдачу, но монтируя подводку под такие осветительные приборы, натяжное полотно придется опустить ниже на 8-12 сантиметров.
Устанавливая осветительные приборы, важно помнить о противопожарной безопасности, не экономить на сантиметрах высоты, если того требуют технические характеристики ламп.
При планировании рекомендуется предусмотреть возможность циркуляции воздуха между поверхностью потолка и корпусом осветительного элемента.
Высота натяжного потолка с точечными светильниками. Минимальная высота натяжного потолка
Сегодня основным дизайном квартиры является натяжной потолок. Перед началом ремонта следует обдумать и зарисовать 3D проект комнаты. Частую бывает, что клиент хочет установить двухуровневые или многоуровневые потолки, а высота комнаты не позволяет этого сделать.
Некоторые компании в борьбе за объекты, утверждают, что способны устанавливать конструкцию даже минимум на 2см. Действительно ли это так, давайте рассмотрим. Нет правильного ответа на вопрос какая минимальная высота натяжного потолка. Подвесная конструкция может опускаться от 3 до 30 см.

Глянцевый потолок в комнате с точечными светильниками и люстрой
На высоту натяжных потолков влияют много факторов:
- размер и вид профиля (багета)
- первоначальный вид базового потолка
- наличие коммуникационных труб, которые необходимо срыть под натяжным потолком
- осветительные приборы, потолочные светильники, люстры которые необходимо установить в помещении.
- перепады высоты так же могут забирать высоту.
- звукоизоляция. Если хотите дополнительно сделать звукоизоляцию, то натяжной потолок опустится га 8-9 см.
Виды багета
- НАСТЕННЫЕ. Крепятся на стену при условии, если стена ровная и выдерживает дальнейшую усадку потолка. В комнате с помощью специального лазера устанавливается разметка. По разметке далее уже проводятся работы по установке данного профиля.
- ПОТОЛОЧНЫЙ. Минимальная высота установки натяжного потолка происходит именно в данном случае, когда багет для полотна крепится в базовый потолок. Такой монтаж, чаще всего происходит, в квартирах с низкими потолками. Варианты установки осветительных приборов, тоже сводится к минимуму.
- УНИВЕРСАЛЬНЫЕ. Крепятся как к стене, так и к потолку.
Высота багета так же зависит от материала, из которого он сделан. Алюминиевый багет в большинстве случаев бывает 4 см, а пластиковые 3 см.
Натяжной потолок с минимальной потерей высоты — это одноуровневые потолки, где багет (профиль) устанавливается на базовый потолок. Но зачастую во многоквартирных домах базовый потолок сделан из бетона и имеет неровности.

Многоуровневый потолок в гостиной с подсветкой
На то, сколько сантиметров опустить натяжной потолок от базового влияют габариты будущего освещения. Важно заранее обдумать и решить какие светильники или крепление для люстры установить.
Пример:
- Закладная под люстру ставится на уровне 4 см от базового потолка.
- Точечный светильник с лампочкой MR-16 устанавливается на уровне 6 см от базового потолка.
- Точечный светильник с точкой накаливания устанавливается на расстоянии 10 см от базового потолка.
- Система безопасности и сигнализации устанавливаются на уровне 14 см от базового потолка.
СОВЕТ: Выбирая осветительные приборы для потолка с минимальной потерей высоты стоит отказаться от громоздкой люстры, стоит выбрать штапиковый вид крепления. В низких помещениях выигрышно получаются потолки со световыми линиями по периметру с глянцевым материалом. Светлые тона потолков визуально увеличивают и освежают пространство.
Для достижения лобового дизайнерского решения, установить двухуровневые или многоуровневые потолки, высота комнаты не должна быть меньше чем 2.4 метра.